FULL DESCRIPTION **No Onward chain**

Hamiltons are proud to present this well presented and ideally situated two bedroom first floor flat, situated within walking distance of local schools, shops & pubs as well as Frimley Lodge Park with its playgrounds cafe,with great public transport links locally this property is great for first time buyers or investors.

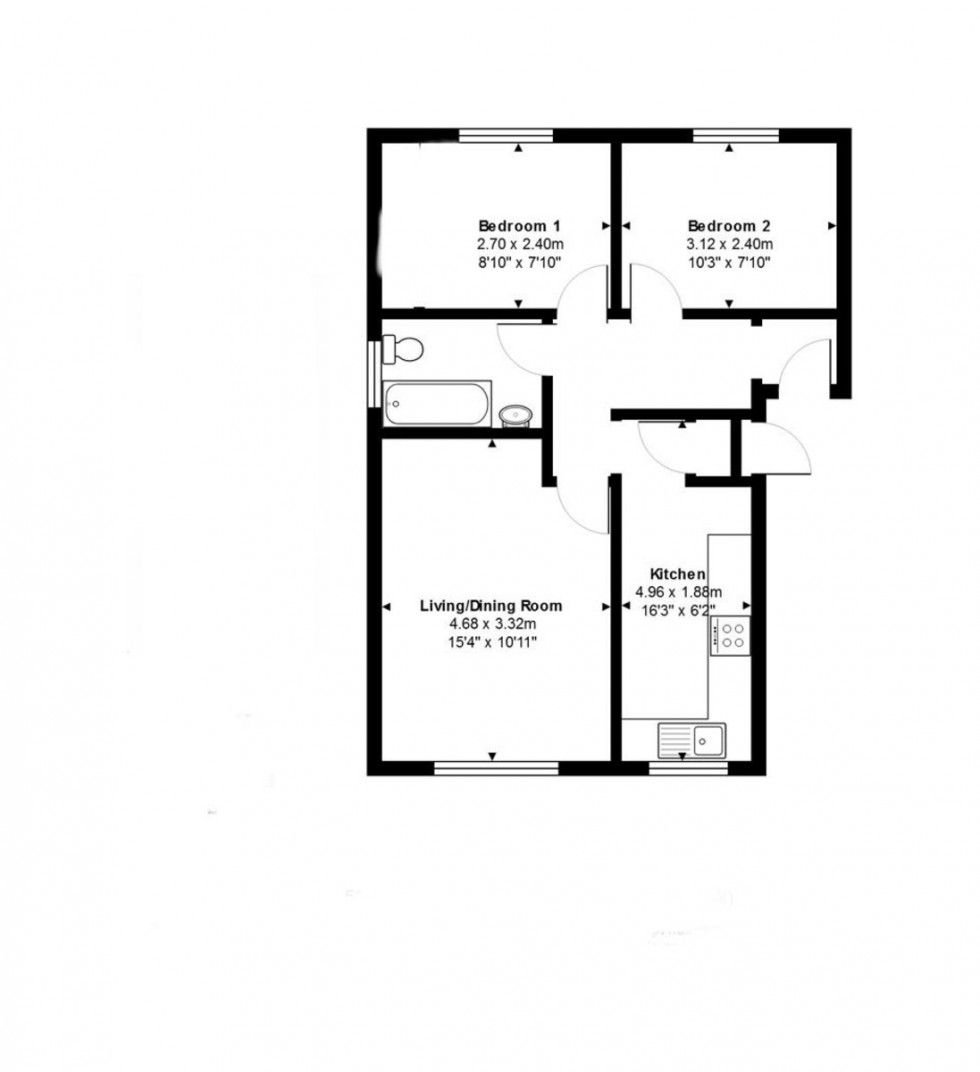
The accommodation comprises of two double bedrooms, a larger than expected fitted kitchen, bathroom and a front aspect lounge/dinner the property also benefits from a garage with power


Further benefits include gas fired central heating, uPVC double glazed windows.

Council Tax Band £1,922.86pa
  • No Chain
  • Separate Kitchen
  • two double bedrooms
  • Cul De Sac Location
  • Refitted Kitchen
  • Walking Of Shops, Pubs & Schools
  • Garage with power
Floorplan for Frimley Green, Camberley

Get an instant online valuation

Find out how much your property is worth