Frimley Green, Camberley

Sold Subject to Contract Asking Price Of, £450,000

3 1 2
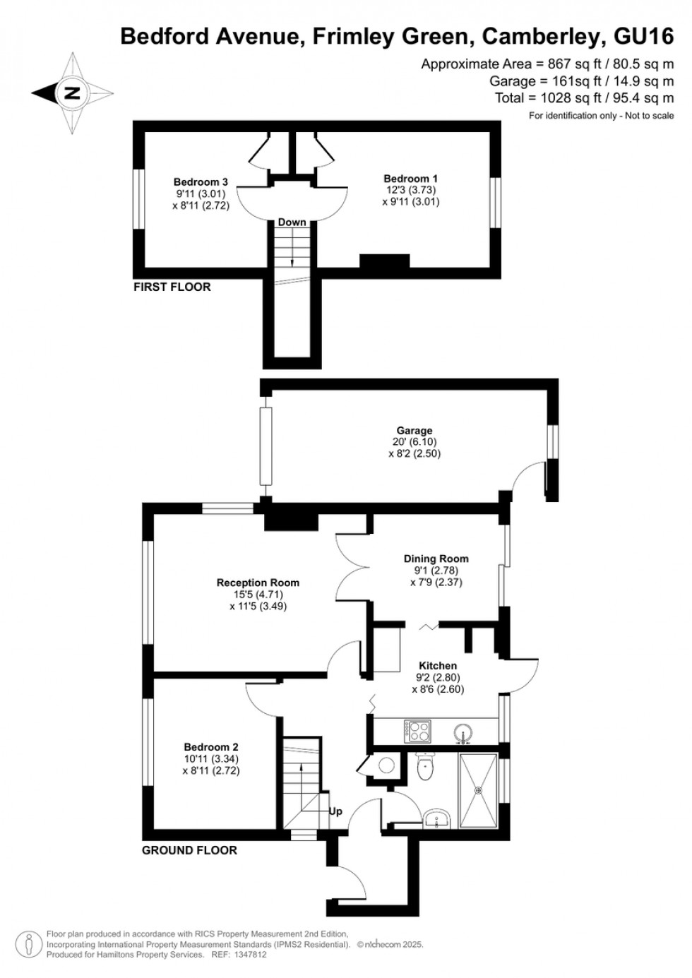
FULL DESCRIPTION Hamiltons are pleased to offer this three-bedroom detached home in need of modernisation,tucked away in a peaceful close in the heart of Frimley Green Village. The location is within easy walking distance of local pubs, shops, and well-regarded schools including Frimley C of E Junior, Cross Farm, and Sandringham Infant Schools. Frimley Lodge Park, with its café, playgrounds, and access to the Basingstoke Canal, is also nearby.

The property includes a bright living room and a separate dining room/playroom, offering flexibility for family life. The kitchen is fitted with a range of eye-level and base units, with space for a washing machine and cooker. Downstairs also features a versatile bedroom, while upstairs you'll find two further well-proportioned bedrooms. The bathroom has been converted into a wet room, providing accessible and practical living.

This property also benefits from a large drive, carport and a single garage.

(PHOTOS HAVE BEED DIGITALLY CLEARED OF STUFF)

  • Off street parking
  • Quite close
  • Three bedrooms
  • Garage and carport
Floorplan for Frimley Green, Camberley
Similar Properties

Get an instant online valuation

Find out how much your property is worth